Piękne mieszkanie na Starym Mieście dla Najemcy ceniącego klasykę, estetykę i szlachetne wnętrza. Zadbana posesja i kamienica, piętro 2 z 3 (bardzo wygodne, szerokie schody). Lokal składa się z 3 pokoi, z których jeden jest przechodni. Elegancka drewniana stolarka wewnętrzna i okienna, dębowe podłogi, umeblowanie i wyposażenie w klasycznym eleganckim stylu. Okna salonu i mniejszego pokoju wychodzą na uroczą ulicę Św. Ducha, natomiast okna kuchni i sypialni wychodzą na ładnie zagospodarowany zamknięty zielony dziedziniec .
Łazienka z wygodnym prysznicem i zabudowaną pralką. Piękna kuchnia z oknem, dużą ilością blatów, z kuchenką z palnikami gazowymi, z dużą lodówką, stoliczkiem śniadaniowym i efektownym oświetleniem. W przedpokoju funkcjonalna zabudowa.
Opłaty eksploatacyjne: miesięczny czynsz do wspólnoty 1300zł + energia elektryczna. Ogrzewanie miejskie (wliczone w czynsz). Parkowanie na ogólnodostępnych miejscach lub na posesji (ograniczona liczba miejsc) + możliwe wyrobienie w UM "wjazdówki" na Stare Miasto.
Wymagana jest kaucja 6.000zł. Najem długoterminowy. Lokal, jego położenie i wyposażenie naprawdę robią wrażenie. Budynek wiernie odbudowany po wojennym zniszczeniu kamienicy, w której urodził się Artur Schopenhauer. Bardzo polecam!
Zamieszczone na naszych stronach ogłoszenia nie stanowią oferty w rozumieniu Kodeksu Cywilnego, a dane w nich zawarte mają charakter informacyjny. Obsługa wszystkich transakcji zabezpieczona jest polisą OC oraz objęta licencją PFRN.
Super - stylowe na Starym Mieście - długoterminowo
lokalizacja: Gdańsk, św. Ducha
4 600,00 PLN
73,60 PLN
Dane szczegółowe
- Typ transakcji: wynajem
- Typ nieruchomości: Mieszkanie
- Lokalizacja: Gdańsk Stare Miasto, św. Ducha
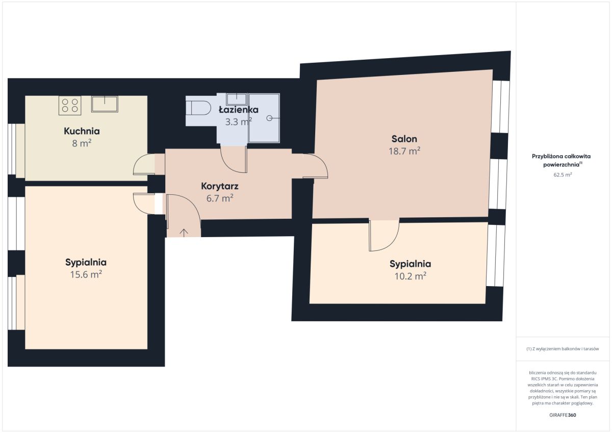
- Powierzchnia:62,50 m2
- Liczba pokoi: 3
- Rok budowy: 1910
- Piętro: 2 z 3
- Numer oferty: 416987
- Cena: 4 600,00 PLN
- Cena za m2: 73,60 PLN
Opis nieruchomości
Wirtualny spacer po nieruchomości
Adres strony www: https:// NULL
Kontakt do opiekuna:
"AVO Nieruchomości"